德國工業(yè)4.0智造

  • 健康環(huán)保
  • 免費服務
  • 三年質保
  • 本地體驗
首頁 > 案例中心 > 歐式 > 守住時間

守住時間 3699

124㎡#三室兩廳兩衛(wèi)#歐式

案例介紹
山東省 - 德州市 - 德城區(qū) 唐人中心

白色的簡潔樸素、加上黑色的高雅時尚,在家裝顏色搭配中一直是寵兒,不僅能讓小空間更顯開闊,還可以讓人在煩囂中感受白色的寧靜。 

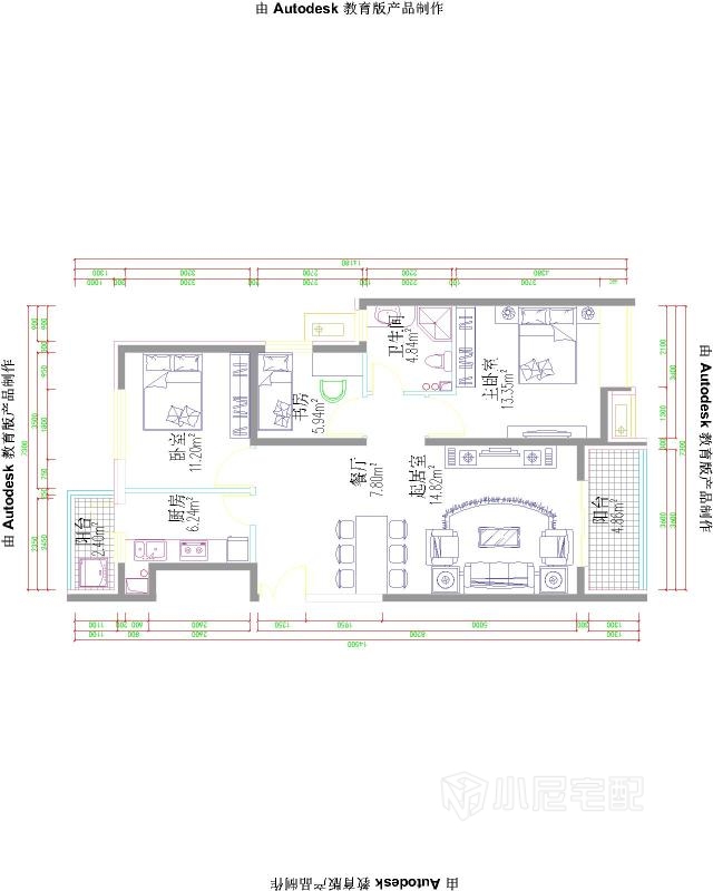
戶型圖

黑色描銀邊桌,綻放著自我的美麗。
一盆綠植,生機盎然。
拼花的瓷磚搭配造型的天花,簡單大方。
放眼望去,整個客廳顯得開闊明亮。
每個角落都充滿無盡的奢華。
完美的弧度融入精細的雕花,將生活的感動化為細致的品味,慢慢鑒賞。

                               
歲月積淀,懷舊典范。
小尼凡爾賽宮櫥柜,大氣沉穩(wěn)的設計,仿古的造型。盡享深厚的底蘊。
山東省-德州市
設計經驗5 作品3
  • 美式
  • 簡約
  • 混搭
  • 硬裝設計
  • 軟裝配飾設計

免費申請設計

設計師上門服務全程免費,禁止以任何形式收取費用。

請輸入驗證碼

驗證碼輸入錯誤